€
collectés
sur
7 500 €
à collecter
16
donateurs
Collecte lancée le
10/03/2026
Fin de collecte le
10/05/2026
Sainte Jeanne-Antide - SANCEY - 25
Construction
Contribution par carte bancaire, virement ou chèque.
Depuis septembre 2019, notre collège ne dispose plus de cantine. Chaque jour, nos élèves demi-pensionnaires doivent se rendre à la salle des fêtes de la commune pour déjeuner. Cet espace, bien que mis à disposition avec générosité, n’est pas adapté à l’accueil d’élèves : les trajets quotidiens sont longs, les conditions de repas sont précaires, et le moment du déjeuner, qui devrait être un temps de détente et de convivialité, devient souvent une contrainte.
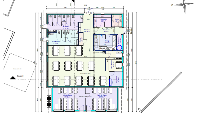
Face à cette situation, nous avons décidé d’agir. Notre projet est de construire une nouvelle cantine au cœur même de l’établissement. Ce nouveau lieu de vie comprendra une salle de restauration accueillant jusqu’à 60 élèves ainsi qu’un espace cuisine fonctionnel permettant de préparer et de servir les repas dans de bonnes conditions.

Mais ce n’est pas tout : notre collège manque également de salles de classe. Pour répondre à la croissance des effectifs et offrir de meilleures conditions d’apprentissage, nous profiterons de ce chantier pour construire deux nouvelles salles de classe, chacune pouvant accueillir jusqu’à 30 élèves.
Ce projet représente bien plus qu’un simple bâtiment : c’est un investissement pour le bien-être et l’avenir de nos élèves. Offrir un cadre accueillant, moderne et adapté, c’est leur permettre d’apprendre et de grandir dans les meilleures conditions.
Le coût global de cet investissement s'élève à 25 000€.
Les ressources financières de l'école ne permettent pas de couvrir cette tranche de travaux.
----------------------------------------------------------
Pour rendre notre démarche plus dynamique, nous avons divisé cet objectif en palier de 7 500 euros.
Chaque
palier franchi est une étape importante qui nous permettra d'avancer
encore plus dans notre projet et débloquera le suivant.
---------------------------------------------------------
Nous comptons sur votre soutien pour donner vie à ce beau projet. Chaque don, quel qu’il soit, contribuera à construire un lieu où nos jeunes pourront se retrouver, partager, apprendre et s’épanouir.
Les dons seront utilisés pour renouveler le mobilier intérieur et extérieur vieillissant.
Le collège Sainte Jeanne-Antide est un petit établissement rural situé à Sancey dans le Haut-Doubs. Il n'a pas d'école rattachée. L'effectif actuel est de 114 élèves dont 107 demi-pensionnaires.
De taille humaine et à dimension familiale, les enfants viennent de 37 communes en utilisant les transports scolaires.

Jaidemonecole.org est la plateforme de financement participatif de la Fondation Saint Matthieu qui recevra votre don et vous enverra le reçu fiscal prochainement.
Vous bénéficiez d’une réduction d’impôt sur le revenu égale à 66% du montant de votre don, dans la limite de 20% de votre revenu imposable, reportable sur 5 ans. Ainsi : un don de 200€ vous coûte 68€ après déduction fiscale.
Vous bénéficiez d’une réduction d’impôt sur les sociétés égale à 60% du montant de votre don, dans la limite de 5‰ ou 0.5% de votre CA, reportable sur 5 ans.
Jaidemonecole.org est la plateforme de financement participatif de la Fondation Saint Matthieu qui recevra votre don et vous enverra le reçu fiscal prochainement.
Vous bénéficiez d’une réduction d’impôt sur le revenu égale à 66% du montant de votre don, dans la limite de 20% de votre revenu imposable, reportable sur 5 ans. Ainsi : un don de 200€ vous coûte 68€ après déduction fiscale.
Vous bénéficiez d’une réduction d’impôt sur les sociétés égale à 60% du montant de votre don, dans la limite de 5‰ ou 0.5% de votre CA, reportable sur 5 ans.
CEDRIC & RACHEL BOBILLIER
Bravo pour la réalisation et le prochain aboutissement de ce beau projet !
Donateur anonyme
Samuel Cassard
Donateur anonyme
Lucile Quartenoud
Angélique Ponçot
Yann Goulard
Donateur anonyme
Une belle cantine pour nos collegiens
Isabelle Lesourd
Sandrine VUILLIER-DEVILLERS
Fanny Devillairs
jean bugnet
Donateur anonyme
CONSTRUCTIONS DE GIORGI
GROSPERRIN ENTREPRISE
Carole Dufay
Il n'y a pas d'actualité pour l'instant.